 
	Prodej bytu 3+kk na Valše
Špačková 5
REZERVOVÁNO
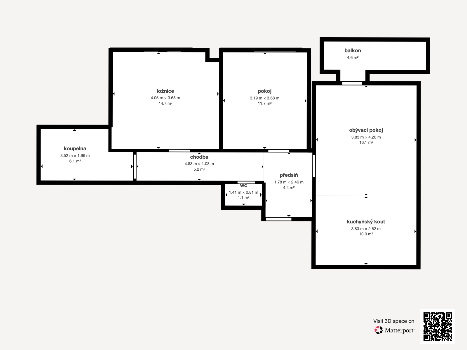
plocha bytu: 76 m²
 
	
Špačková 5
REZERVOVÁNO
plocha bytu: 76 m²
Představujeme k prodeji byt se zahradou ve Špačkové ulici v Plzni na Valše.
Informace o lokalitě:
Valcha se nachází na okraji Plzně se skvělou docházkovou vzdáleností lesem do Plzně. Stejně tak je pár kroků od domu autobusová zastávka MHD. Dům je umístěn v zástavbě novostaveb z roku 2017. V těsné blízkosti je dětské hřiště s tenisovými kurty a hospůdkou, potraviny, les a Litická přehrada.
Informace o bytě:
Byt se nachází v přízemí cihlového domu. Jeho dispozice je 3+kk, k tomu má vlastní komoru. WC a koupelna jsou oddělené. Ze všech tří pokojů lze vyjít na terasu a následně pak na zahradu, která má velkorysých 242 m2. Zahrada je rozlehlá, oplocená, s vlastním vstupem skrz vrátka přímo z chodníku. Nalezneme zde zahradní domek, trampolínu a klouzačku. Toto příslušenství zde zůstane. 
Byt je vytápěn a voda ohřívaná centrálním plynovým kotlem v domě. K bytu dále patří sklep v domě a vlastní venkovní parkovací stání. Do bytu je zavedený internet skrze optický kabel. Byt se prodává bez vybavení kromě kuchyňské linky.
Výměry:
Užitná plocha bytu: 76,36m2
Sklep: 1,45m2
Terasa: 15m2
Zahrada: 242m2
Hledáte-li hezké místo k bydlení - prostorný byt se zahradou a vyřešeným parkováním v hezké lokalitě v těsné blízkosti Plzně, zavolejte mi, bytem Vás ráda provedu. 
Pro koupi bytu zajistíme kompletní realitní a právní servis a financování hypotečním úvěrem.
Kontaktujte mě, prosím, pro domluvení prohlídky:
Bc. Hana Procházková
TAURUM reality s.r.o.
Uvedené výměry jsou orientační.



Hanka Procházková - realitní makléřka
728 174 601
